brpr
Élévation de l’Hôtel de Ville et de la place Foch, Bibliothèque Nationale de France
07 03
Coupe projet sur la grande salle du pavillon Langlois et sur l’ascenseur
29 05
Croquis des réflexions menées sur la restauration des gradins
18 04
Église Notre-Dame-de-la-Gloriette de Caen, orthophotographie de la façade est
06 18
Photographie de la salle de repos
13 09
Quai Gambetta, le dialogue ville / île
11 01
Quatre enjeux majeurs : une opération d’envergure pour Châlons ; la revitalisation du centre ville : priorité commerce ; composer avec un ordonnancement classique dans un site sensible ; une flexibilité d’usages pour la place Foch
07 01
Le Lude, site de la friche Candia, enjeux patrimoniaux et paysagers
04 02
Axonométrie de l’état projeté sur rue.
23 05
Vue intérieure existante de la grande salle du pavillon Langlois
29 04
inventaire architectural des éléments remarquables
20 01
Image depuis la cour d’entrée du conservatoire, refermée par la nouvelle extension. Image : galerie blanche
16 09
Schéma d’intention : en premier lieu, le paysage ; des espaces introvertis d’enseignement et de création dans un ensemble paysager ouvert sur la ville
16 02
La surélévation côté rue : un assemblage de pierre qui lévite délicatement au-dessus des corniches existantes
20 10
L’extension côté jardin : un assemblage de pierre dans le prolongement du bâtiment existant
20 05
Photographie du chantier
13 06
Montage des piliers et arbalétriers (vue du côté est)
20 08
Axonométrie de l’étude menée sur l’îlot sud du centre-bourg
19 02
Vue plongeante sur le projet de la Place Foch
07 13
Image : E.Gozard
15 03
Axe des corridors vers l’ouest - Photographie d’archives avant le projet de Michel Goutal ACMH, 1984
18 06
Vue perspective de l’état projeté des parties communes : cage d’escalier avec réfection des sols, remise en peinture et réaménagement.
23 03
05 01
Dispositifs existants (la glacière, la grotte) et créés (le mur qui apporte ombrage en été et chaleur en hiver)
16 03
Retrouver les perspectives sur le grand paysage, projet initial de l’architecte Maurice Puteaux
21 02
Séquences d’entrée : façade sur rue, seuil, hall général, work-café
20 04
Vue du marché depuis la rue de l’Olican
22 02
Coupe du projet d’ensemble. Illustration : Diane Berg
20 03
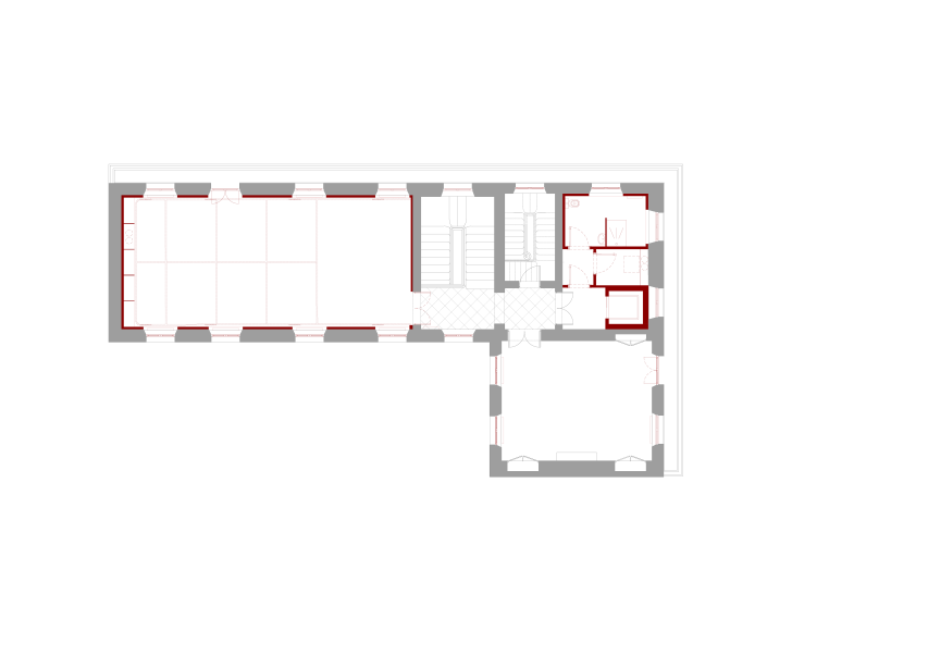
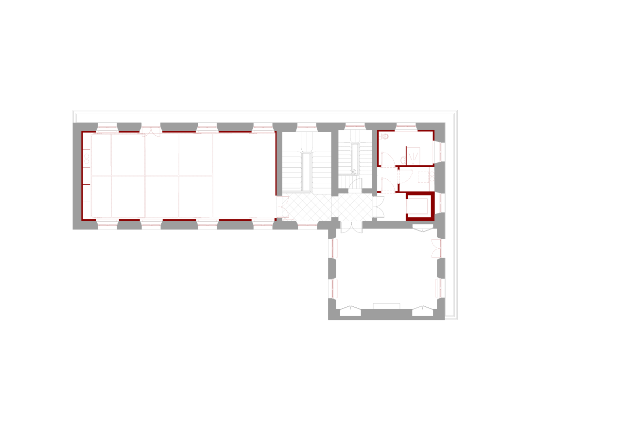
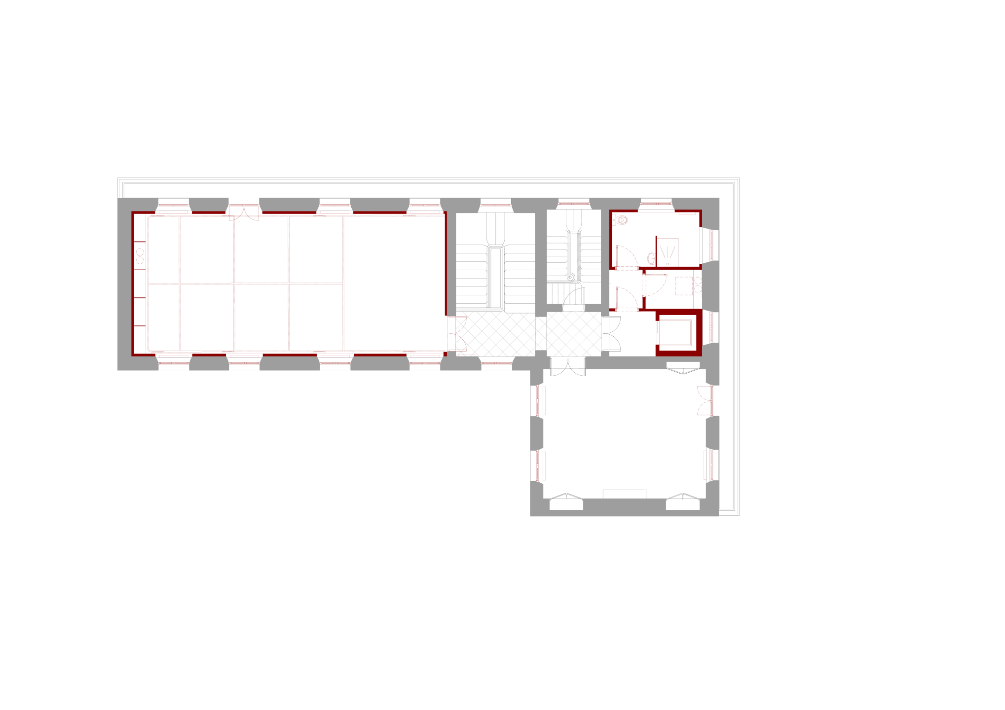
Plan projet du premier étage du pavillon Langlois
29 01
Église Saint-Ouen, synthèse des désordres
06 11
Maquette fragment. blanc/brun ; existant/connstruit.
29 10
La Ferté-Bernard, Hôtel Courtin de Torsay, étude architecturale, patrimoniale, et paysagère et enjeux de transformation
04 03
Perspective projet de la grande salle du pavillon Langlois
29 08
Coupe sur l’édifice - Noir, l’existant / Jaune, les démolitions envisagée / Rouge, les nouvelles constructions
07 08
Église de la Trinité, plan de situtation
06 17
Église de la Guérinière, Guy Pison, photo de chantier, 1956, Institut Français d’Architecture
06 02
Château d’eau de la Guérinière, Guillaume Gillet, photo de chantier, 1956, Institut Français d’Architecture
06 04
Grand-Lucé (72) - Étude pour l’implantation d’une médiathèque
04 01
Photographie du pavillon d’entrée, 2023
21 01
Photographie de la maquette fragment
07 12
Plan du projet des pavillons d’entrée, rez-de-chaussée
16 08
Église de la Trinité, élévation nord-ouest
06 16
Schéma de la superposition des couches patrimoniales du site de l’ONERA et des éléments persistants
25 13
Photographie de la cuisine et du meuble transformé
13 08
Carte fictive de Caen, constituée de collages de différentes époques de développement de la ville.
06 01
L’espace collaboratif modulable dans l’espace de l’ancienne piscine
20 02
Axonométrie et schéma de principe : mise en valeur de l’organisation existante en neuf cellules couvertes de voûtes d’arêtes
13 07
13 03
Plans extraits du diagnostic permettant de révéler les premières capacités de transformation des édifices
08 02
Photographie d’époque de l’intérieur de la grande soufflerie de Meudon
25 14
Ortophoto de la façade Est du pavillon Langlois réalisée par Ukko
29 02
Photographie de l’intérieur du bâtiment Ak, inscrit à l’inventaire des monuments historiques
25 11
Photographie intérieure du bâtiment H
25 13
Axonométrie du projet d’ensemble et du parc. Illustration : Diane Berg
16 01
Schéma de la superposition entre le paysage dessiné par Lenôtre et le patrimoine scientifique de l’ONERA
25 05
Château d’eau de la Guérinière, Guillaume Gillet, synthèse de l’évolution du projet
06 07
Coupe sur la Place Foch - Noir, l’existant / Rouge, les nouvelles constructions
07 04
Axonométrie fragment de l’édifice existant et de l’extension projetée
07 11
Photographie depuis les gradins, 2022
18 07
Montage du 1er étage des laboratoires et de l’escalier de service (côté est)
20 09
Croquis vue aérienne de Chalonnes-sur-Loire et identification des sites stratégiques
11 03
Photographie du centre-bourg depuis la ruelle de Gloire, jardins partagés et vue sur l’église Notre-Dame
11 02
Pavillon Langlois, orthophotographie de la façade avant
06 08
Église Notre-Dame-de-la-Gloriette de Caen, hypothèse d’évolution de la façade est
06 19
Axonométrie de l’étude menée sur l’îlot nord du centre-bourg
19 01
Statut
Projet
Programme
Lieu
Maîtrise d’ouvrage
Partenaires
29
Étude en cours
LAN - Pavillon Langlois
Réhabilitation du musée Langlois pour la section théâtre du conservatoire de la ville Caen
Caen (14)
Communauté urbaine Caen-La-Mer
A-BAC (BE structure), BET Babin (BE Energie & Thermique), ING’IEC (BE CFA-CFO), Cyril Vilatte (Economiste de la construction), APROMO (OPC)
25
Livré
Meudon ONERA
AMO expertise architecturale et patrimoniale pour l’Office National d’Études et de Recherches Aérospatiales
Meudon (92)
Grand Paris Aménagement
Cyril Villatte (économie de la construction)
23
Étude en cours
Passage Lisa
Réhabilitation d’un immeuble de 12 logements
Paris 11
Paris Habitat
Elfimm (fluides), Cyril Villatte (économie de la construction), Meta (acoustique), A-Bime (structure)
22
Concours
Marché couvert de Châlons-en-Champagne
Réhabilitation du marché couvert de Châlons-en-Champagne
Châlons-en-Champagne (51)
Ville de Châlons-en-Champagne
Hugo Haas (architecte), Albert&co (environnement), Camebat (économie de la construction), Meta (acoustique)
21
Étude en cours
Hôpital de Rambouillet,
Étude de faisabilité pour la reconversion du site de l’hôpital de Rambouillet
Rambouillet (78)
Ville de Rambouillet
AXL (architectes urbanistes mandataires), Grand Paris Aménagement (expertise immobilière, économie de l’aménagement), Alphaville (programmation urbaine), OGI (VRD), Éco+construire (économie de la construction)
20
Étude en cours
MASA Paris Maine
bureau, salles de réunion, auditorium
Paris (75)
Ministère de l’Agriculture et de la Souveraineté Alimentaire
AAVP (architecte mandataire), ALTEREA (bureau d’études TCE), Atelier Rouch (acoustique), Cabinet Bleuse (SSI)
19
Étude en cours
Étude patrimoniale, Montrevault
Étude du patrimoine architectural et urbain et scénario prospectif
Montrevault-sur-Èvre (49)
Commune de Montrevault-sur-Èvre
Auddicé Val de Loire
18
Livré
Amphithéatre de Grand
Etude de faisabilité sur la réfection des gradins en bois et la protection des vestiges de l’amphithéatre de Grand
Grand (88)
Conseil départemental des Vosges
A-Bime (structure), Farenheit (préventionniste)
17
Concours
Pavillons Prouvé, Imprimerie MAME
Réhabilitation des pavillons Prouvé, ancienne imprimerie MAME
Tours (37)
La Société d’Equipement de la Touraine
A-Bime (structure), RBI (fluides et thermique), Cyril Villatte (économie de la construction), SARIM (OPC), Casso&associés (SSI)
16
Étude en cours
Conservatoire de Ville d’Avray
Conservatoire de musique et de danse de Ville d’Avray
Ville d’Avray (92)
Grand Paris Seine Ouest
AAVP (architecte mandataire), Atelier NDF (paysage), Bollinger&Grohmann (structure), Albert&co (envrionnement), Clarity (acoustique), VPEAS (économie), Axce (SSI), Batscop (OPC)
15
Concours
Le Paraïs, Maison Giono
Restauration de la maison de Jean Giono, aménagement des jardins, construction d’une maison de site
Manosque (04)
DLV agglo
Concorde (architectes paysagistes mandataires), SP2i (ingénieurs TCE)
14
Livré
Appartement, Paris 2
Rénovation d’un appartement
Paris 2
Privé
13
Chantier en cours
Château de Versailles, locaux de sécurité
Locaux du personnel du domaine du château de Versailles
Versailles (78)
Etablissement Public du Château de Versailles
Platypus (architecte mandataire de l’accord cadre), Oural architectes (architectes cotraitants, OPC)
11
Livré
Chalonnes-sur-Loire 2040
Définition du projet de revitalisation urbaine du centre-ville
Chalonnes-sur-Loire (49)
Ville de Chalonnes-sur-Loire
Auddicé Val de Loire (aménagement, mandataire), Chauveau et associés (VRD), Mérimée conseil (ingénierie culturelle touristique)
10
Étude en cours
PLU de Machecoul-Saint-Même
Diagnostic, élaboration du projet communal, traduction réglementaire
Machecoul-Saint-Même (44)
Commune de Machecoul-Saint-Même
Auddicé Val-de-Loire (urbanistes mandataire)
08
Livré
Caserne Foch
Etude de valorisation urbaine de la Caserne Foch
Rennes (35)
Ministère des Armées - MRAI
Anyoji Beltrando (architectes urbanistes mandataires), Alphaville (programmation architecturale et urbaine), Guam consil (montages opérationnels), MOTEEC (économie de la construction)
07
Étude en cours
Place Foch
logements, commerces, espaces publics
Châlons-en-Champagne (51)
SEMCHA
Etablissement (paysage), A-Bime (structure), Elfimm (fluides et thermique), ODC (économie de la construction), Serue (VRD), Meta (acoustique), Atelier J.A (architecte)
06
Livré
Diagnostic des Monuments Historiques de la ville de Caen
Diagnostic des Monuments Historiques de la Ville de Caen
Caen (14)
Ville de Caen
Scala (architecte du patrimoine mandataire), Cyril Villatte (économiste de la construction), Ukko (carthographie)
05
Livré
Mée
Rénovation et extension d’une maison de maître
Mée (53)
privée
sous-traitance pour Nu (architectes et ingénieurs)
04
Étude en cours
Petites Villes de Demain
Accord cadre pour l’accompagnement au management de projet pour la revitalisation des Petites Villes de Demain
Pays de la Loire, Nouvelle Aquitaine, Occitanie, Centre val de Loire, Bourgogne Franche Comté, Auvergne Rhône Alpes, Provence Alpes, Côtes d’Azur, Corse
Groupe Caisse Des Dépôts / Banque Des Territoires
Auddicé Val de Loire (mandataire), Emprixia (mobilité, équipements)
03
Concours
PIC La Salle
collège (auditorium, salles, bureaux, accueil)
Béziers (34)
Pic La Salle
VGA (architecte mandataire), BETS (structure), BEE Blancart&associés (fluides), Acoustic technologies midi, Sud ingé (économie)
2d, rue du Fret - Paris 18

2d, rue du Fret - Paris 18

brpr est un atelier d’architecture basé à Paris, créé en 2021.

Pauline Rabjeau, co-fondatrice, est architecte du patrimoine. Originaire des Pays de la Loire, elle est diplômée de l’école d’architecture de Versailles en 2013. En France et au Royaume-Uni, elle a été la collaboratrice de Philippe Prost (AAPP), Ben Adams, Thibaut Barrault et Cyril Pressacco.

Bertrand Robuchon, co-fondateur, est architecte du patrimoine. Originaire du Limousin, il est diplômé de l’école Boulle en 2008 et de l’école d’architecture de Paris Est en 2010. Il a été le collaborateur des architectes Patrick Rubin, Laurent Becker, et Marc Mimram, avec qui il a travaillé près de dix ans.

Les deux associés fondent brpr suite à leurs années de projets communs à l’école de Chaillot.

Lorène Carquis est diplômée de l’école d’architecture de Belleville. Elle a intégré brpr quelques mois après sa fondation et prend part aux projets et réflexions de l’atelier depuis leur naissance.

Ont contribués au travail de l’atelier : Kenza Ambraisse, Raphaël Bailly, Claire Rabjeau, Adrien Vansteekiste

Copyright

Copyright 2022, brpr. La structure générale, ainsi que les logiciels, textes, images animées ou fixes, sons, savoir-faire, dessins, graphismes, photographies et tous autres éléments composant ce site web sont de l’utilisation exclusive de la société brpr. Toute représentation totale ou partielle de ce site, par quelques procédés que ce soient, sans autorisation expresse de la société brpr est interdite. Copyright 2022, brpr. La structure générale, ainsi que les logiciels, textes, images animées ou fixes, sons, savoir-faire, dessins, graphismes, photographies et tous autres éléments composant ce site web sont de l’utilisation exclusive de la société brpr.

Crédits

Design graphique: Building Paris
Développement: F451
Hébergement: Ovh